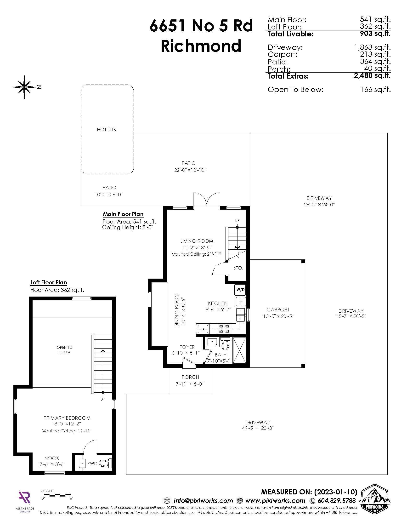
$2,599,000
6651 No. 5 Road
Sold
Features & amenities
- Garden
- Swirlpool/Hot Tub
- Central Location
- Golf Course Nearby
- Private Yard
- Recreation Nearby
- Rural Setting
- Treed
Additional details
- MLS® # R2746924
- Type House
- Subtype House/Single Family
Listing is presented by
Next Door Real Estate Group
Engel & Völkers Vancouver