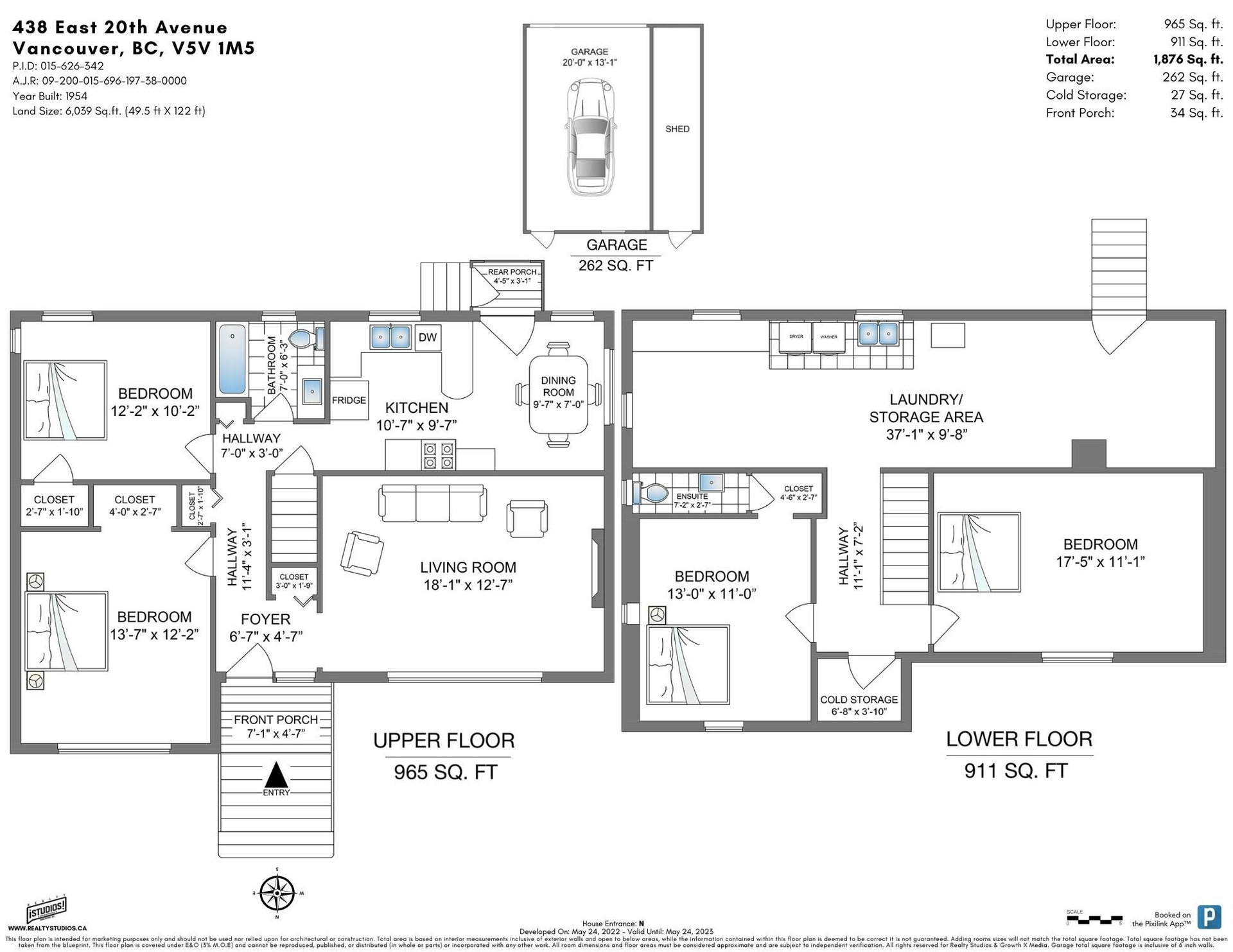
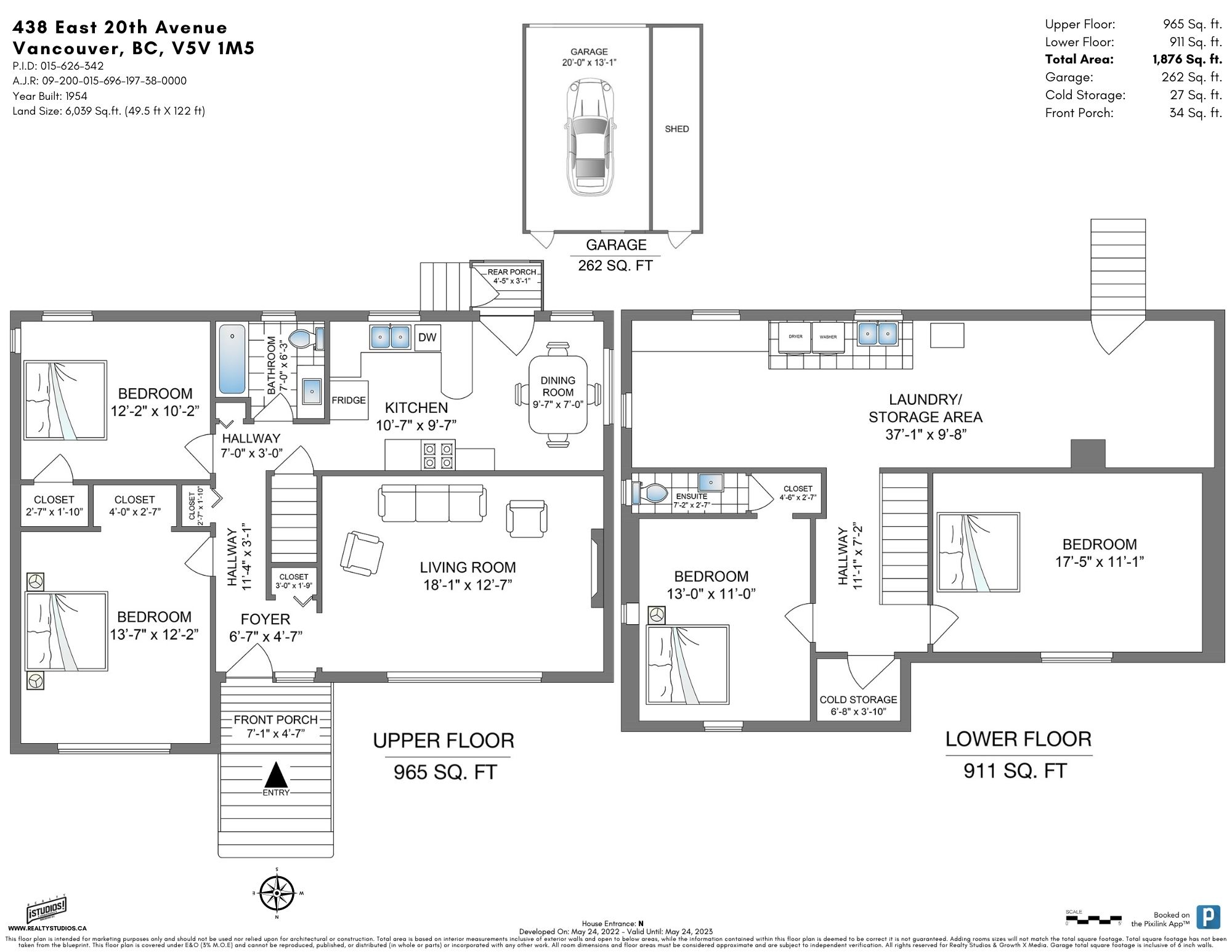
$2,999,000
438 E 20th Avenue
Sold
More information
Features & amenities
- Garden
- In Suite Laundry
- Storage
- Central Location
- Lane Access
- Private Yard
- Recreation Nearby
- Shopping Nearby
Additional details
- MLS® # R2693033
- Type House
- Subtype House/Single Family
Listing is presented by
Next Door Real Estate Group
Engel & Völkers Vancouver